Продажа готового бизнеса на улице Переведеновский переулок, 2 258,9 м2
Цена:
360 000 000 ₽
Цена м2:
159 369 ₽
г Москва, Переведеновский пер, д 13 стр 7
Кадастровый номер: 77:04:0004002:1121; 77:04:0004002:1004
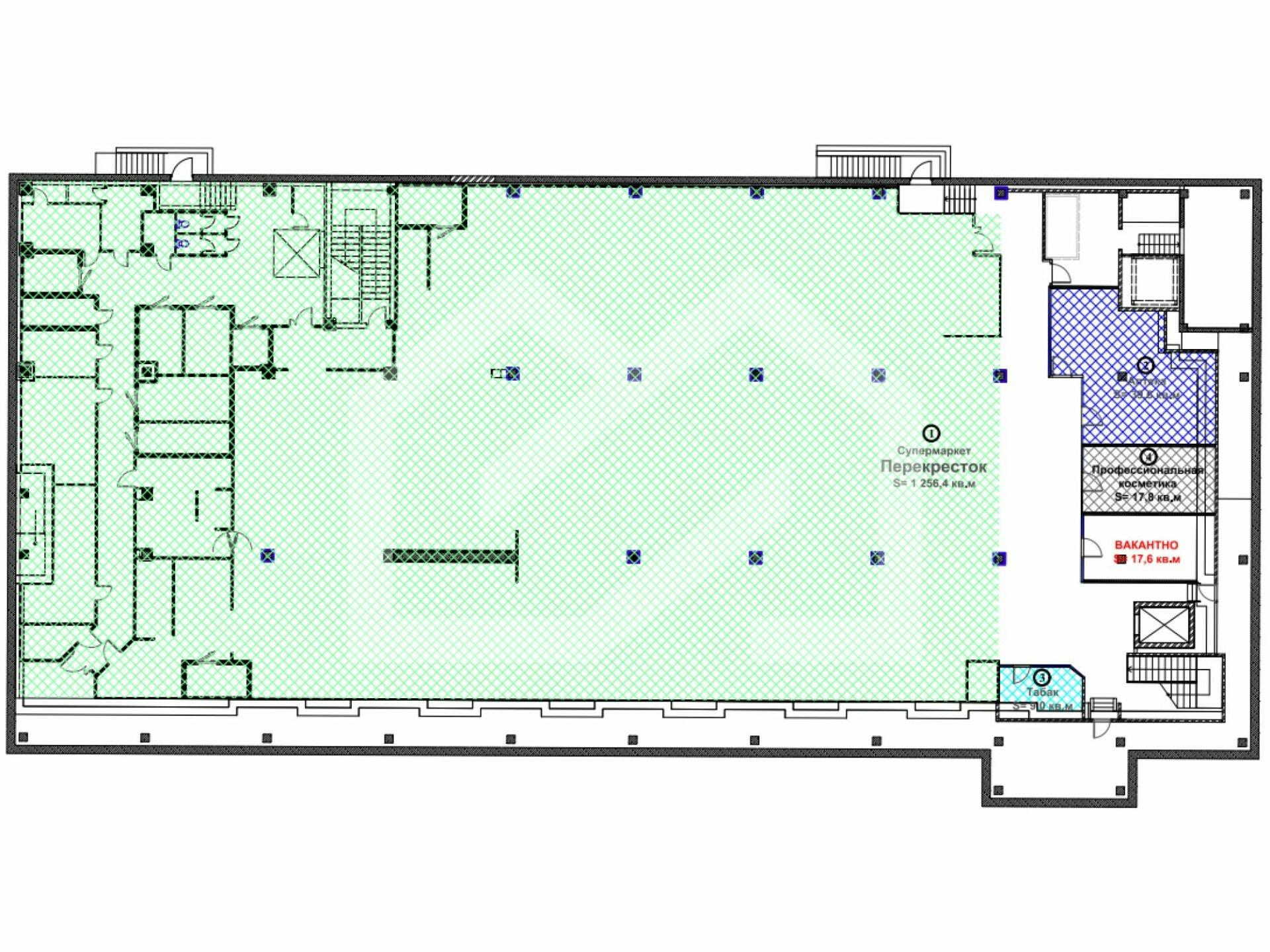
Продажа двухэтажного ТЦ в шаговой доступности от станции метро "Кузьминки". Все необходимые инженерные системы и коммуникации, грузопассажирский лифт и два грузовых подъемника. Парковка на 80 м/м перед объектом. ДАЗУ (0,1016 Га) до 2059 г. Якорными арендаторами данного объекта являются "Перекресток", "Детский мир", "Бургер Кинг", "Сбербанк", "Папа Джонс" и др., Всего этажей: 3, Площадь блока: 4863.4 кв.м., Количество входов: 2, Окна: витринные, Зона разгрузки/погрузки, Электрическая мощность: 700кВт, высота потолков: от 3.2 м.
