Продажа торговой площади в г. Химки, 194 м2
Цена:
70 000 000 ₽
Цена м2:
360 824 ₽
Московская обл, г Химки, Ленинградское шоссе, влд 5
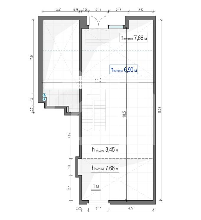
Помещение свободного назначения в жилом квартале премиум класса "Life Time". ЖК состоит из 6 корпусов переменной этажности (от 9 до 22 этажей), рассчитанных на 476 квартир. Отличная транспортная доступность: 11 минут пешком от станции метро "Улица 1905 года". 200 м до Звенигородского шоссе, 930 м до ТТК, 2.5 км до Хорошёвского шоссе, 3 км до Садового кольца. Всего 6 помещений ретейла в составе роскошного квартала Life Time, расположенного в богатеющем районе Пресня. С 2016 года здесь построено 20 премиальных домов, ещё более 35 строится. Текущий пешеходный трафик высок: в непосредственной близости проживают более 5150 человек с высоким доходом. К ним добавляется аудитория всего Пресненского района, которая выбирает для прогулок живописный парк "Красногвардейские пруды", расположенный в 70 м от домов. В ближайшем будущем трафик вырастет благодаря 1250 жителям Life Time и постоянным посетителям детского сада и школы, которые откроются на территории квартала. На большой объём квартир в Life Time предусмотрено минимальное количество помещений для ретейла, их площадь варьируется от 119 до 240 кв. м. У лотов свободная планировка и потолки высотой от 3,5 до 8,6 м, собственный отдельный вход с улицы и панорамные витрины. Ретейловые помещения оборудованы новыми и лучшими в своём классе инженерными системами, что позволяет обеспечить их всем необходимым для комфортной работы. 1 (187.8 кв. м), 2 уровень (56.6 кв. м) 11-этажного жилого дома. Отдельный вход. Свободная планировка. Вытяжка под общепит. Электрическая мощность: 45.7 кВт. Высота потолков: 7.66 м. Витринное остекление. Служба комфорта Sminex обеспечивает сервис высокого уровня: круглосуточно заботится о жилом квартале, в том числе о зоне ретейла, внимательно следит за тем, чтобы всё работало так, как было изначально задумано. Девелопер проекта — Sminex, который создаёт самую комфортную и престижную среду для жизни и работы. Компания занимает лидирующую позицию на рынке элитной и премиальной недвижимости: площадь проектов в стадии строительства и проектирования превышает 900 тыс. кв. м.
