Продажа склада в г. Люберцы, 1 472 м2
Цена:
206 080 000 ₽
Цена м2:
140 000 ₽
Московская обл, г Люберцы, поселок Чкалово, ул Токаревская, д 15
Предлагается складской комплекс формата Лайт Индастриал в 11 км от МКАД, в индустриальном парке Южный.
Преимущества:
Объект расположен между трассами М-2 и М-4 вблизи деревни Бяконтово.
Удобный заезд с Варшавского и Симферопольского шоссе (съезд сдается в 2026 г.)
Объект расположен между главными подмосковными кольцевыми дорогами МКАД и ЦКАД, 25 км от аэропорта Домодедово и 40 км от Внуково.
Один из самых крупных транспортных хабов региона.
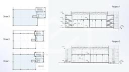
Формат блоков: 80% - универсальное складское пространство в 2 этажа, 20% - офисно-торговый блок: трехуровневый с готовой отделкой.
Погрузочные зоны в каждом блоке на уровне 1.2 м или 0 м от земли.
Каждый блок оборудован грузовым подъемником 2 т.
Все блоки можно объединять.
Контроль въезда и охрана.
Отопление здания от собственной газовой котельной (444 м3/час).
Закрытая территория.
Парковка перед зданием.
Характеристики:
Площадь 1 блока: 540 кв. м, из которых:
430 кв. м. - склад, 110 кв. м. - АБК.
Шаг колонн: 12х18.
Мощность - 50 кВт, с возможностью увеличения.
Высота потолка: 1 этаж - 8 м, 2 этаж - 5 м.
Нагрузка на пол: 1 этаж - 5т/м², 2 этаж - 2 т/м².
Система пожаротушения - спринклерная.
Так как корректный адрес отсутствует на Яндекс.Картах, введен ближайший.
