Аренда офиса на улице Нахимовский проспект, 2 084 м2
Аренда в месяц:
6 356 200 ₽
Цена м2/год:
36 600 ₽
г Москва, Нахимовский пр-кт, д 58
Коворкинг. Офисное помещение в аренду в бизнес-центре "Газетный 17 "(класс А).
Удобное местоположение бизнес-центра, в пешей доступности до метро Охотный ряд - 6 минут и Театральная - 5 минут.
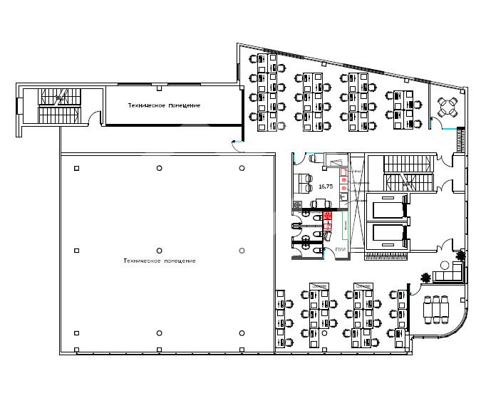
Офис 286,8 кв. м. на 10 этаже. Полностью оборудовано 41 рабочее место. Современный представительский офис. Лучшее решение в сфере офисных интерьеров и инженерных технологий: 2-х трубная система фанкойлов и центральная система вентиляции, 2 пассажирских лифта фирмы KONE. Панорамное остекление. Потолок - 3,5 метра. Планировка смешанная. Готовое к въезду с мая 2025 г.
Регулярный клининг, горничные и кофе-леди. Административная поддержка, услуги ресепшен. Эксплуатация и поддерживающий ремонт. F&B-обеспечение: кофе, чай, вода, посуда. Работа в рамках SLA / service level agreement. Наземный паркинг. Развития инфраструктура: ресторан, кафе, супермаркеты, столовые, магазины. Все расходы включены в стоимость аренды.
