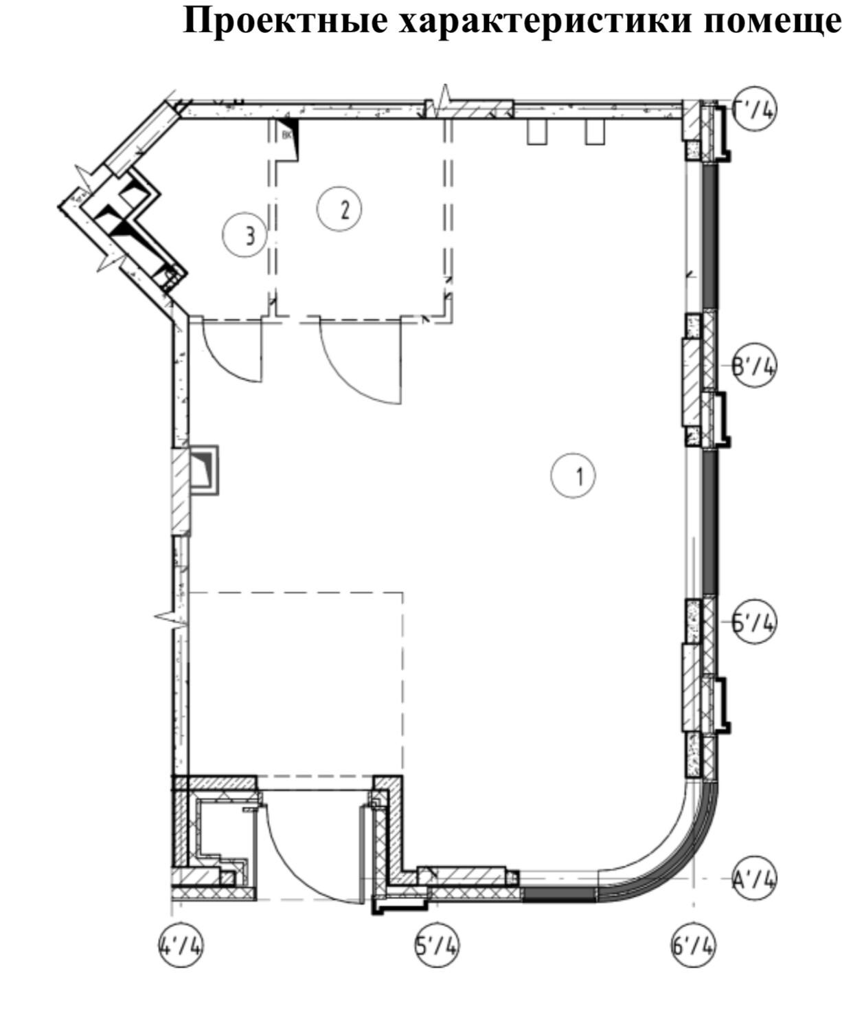
Аренда торговой площади на улице Прокшинский проспект, 91,7 м2
Аренда в месяц:
300 000 ₽
Цена м2/год:
39 252 ₽
г Москва, р-н Коммунарка, Прокшинский пр-кт, д 7
Помещение свободного назначения в ЖК «Shagal». Корпус 4. Первая линия набережной Марка Шагала. ЖК состоит из 27 корпусов переменной этажности (от 6 до 28 этажей), рассчитанных на 4 530 квартир. 25 минут пешком от станции метро Технопарк. 3 км до ТТК и 2.5 км до проспекта генерала Дорохова. Плотный жилой массив. Сложившееся торговое окружение. Интенсивный автомобильный и пешеходный трафик. 1 этаж 15-этажного жилого дома. Отдельный вход с фасада. Зальная планировка. Витринное остекление. Место для вывески. Подземная парковка. Рядом остановка общественного транспорта. Ввод в эксплуатацию: 4 квартал 2025 год. Электрическая мощность: 15 кВт. Высота потолков: от 6 м (высота позволяет сделать антресоль).
